
solutions
EBASEE, a global leader in low-voltage electrical equipment and power system solutions, has successfully delivered a customized medium-voltage switchgear solution for a leading export-oriented manufacturing group. The project met the customer’s requirements for a high-reliability, intelligent power distribution system and further demonstrated EBASEE’s advanced customization and international project delivery capabilities.
Client Profile
The customer is a large, export-oriented manufacturing enterprise with diversified operations in textiles, home products and consumer appliances, and a global sales footprint. As production capacity expanded, the company required a customized, high-reliability power system for a core industrial park to ensure uninterrupted operations and enable intelligent energy management.

Project Requirements
Key technical and operational requirements included:
Compliance with international medium-voltage standards for long-term safe and stable operation;
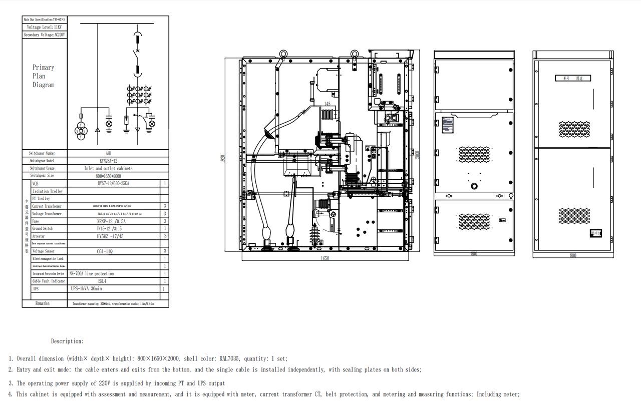
A compact, extendable switchgear layout supporting panel extension and interlocking;
Multiple outgoing circuits and reserved remote communication interfaces;
A tidy internal arrangement to facilitate inspection and maintenance;
Custom labeling and terminal arrangements to match site technical specifications.
Solution Overview
EBASEE developed and delivered a customized BX-T series medium-voltage switchgear tailored to the customer’s specifications:



Modular Structure: Extendable cabinet design with bottom-in/top-out configuration to optimize on-site space and enable parallel installation.
Electrical System Customization: Breakers, isolators, CTs and control units wired and configured per client-approved drawings.
Smart Integration: Reserved Modbus/RS485 communication ports for integration with the customer’s central monitoring and SCADA systems.
Safety Features: Comprehensive interlocking and anti-misoperation mechanisms to ensure operational security.
Thermal Management: Ventilated door design to maintain stability under elevated ambient temperatures.

The project lifecycle—from solution confirmation and technical alignment through manufacturing, assembly, factory testing, commissioning and export—was completed within 42 days. EBASEE provided full technical documentation and remote commissioning support.
Client Feedback (anonymized)
After several months of operation, the customer reported strong performance and operational satisfaction:
“The switchgear structure is robust, wiring is clearly organized, and maintenance is straightforward. The system operates smoothly; EBASEE’s delivery efficiency and professional support have met our expectations. We plan to expand the deployment to additional sites.”

Project Highlights
High-profile international deployment — Successful delivery for a major export-oriented manufacturer, validating EBASEE’s global capability.
Comprehensive customization — Tailored structural, electrical and smart-integration solutions for a complex operational environment.
End-to-end delivery — Efficient coordination across design, production, testing and after-sales support ensured on-time implementation for an overseas project.
Why Choose EBASEE?
Integrated solutions: One-stop switchgear and panel solutions from low-voltage to medium-voltage, covering both standard and non-standard applications.
Proven global experience: Projects delivered across 50+ countries, with expertise in export packaging, multilingual documentation and remote technical assistance.
Manufacturing capability: In-house sheet-metal, assembly and testing lines supporting high-volume and diverse OEM/ODM requirements.
International compliance: CE, CB and TUV certifications to meet major market access requirements.
With a focus on innovation and tailored engineering, EBASEE continues to provide safer, smarter and more efficient power system solutions to customers worldwide.